Мы используем файлы cookie.
Москва
Изменить
2 900 000 ₽
1-комн., 28 м², 3/5 этаж
Обратный звонок
Есть вопросы о недвижимости?
Закажите звонок от продавца
иконка запроса фото
В объявлении мало фото?
Попросите продавца прислать ещё

1-комн. квартира, 28 м², 3/5 этаж

Луганская Народная Республика, Луганск, 26-й квартал, 30

О квартире

Основные характеристики
  • Комнат
    1
  • Площадь
    28 м2
  • Этаж
    3
  • Тип сделки
    Свободная продажа
  • Тип жилья
    Квартира
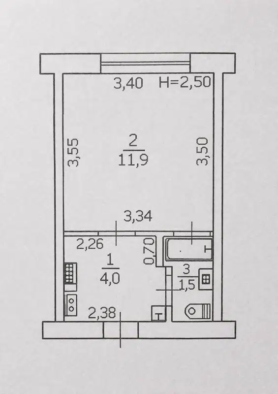
Планировка
  • Перепланировка
    Нет
  • Балкон
    нет
Подъезд
  • Грузовой лифт
    Нет
Детали сделки
  • Несовершеннолетние собственники
    Нет
  • Прописанные несовершеннолетние
    Нет
Описание
Продам 1к квартиру (Полугостинка) 26й квартал, г. Луганск Этаж 3/5 Кирпичный дом, в этом году полностью перекрыта крыша. Квартира тёплая, компактная, готова к проживанию. Планировка и оснащение: – ме...Читать далее
Продам 1к квартиру (Полугостинка) 26й квартал, г. Луганск Этаж 3/5 Кирпичный дом, в этом году полностью перекрыта крыша. Квартира тёплая, компактная, готова к проживанию. Планировка и оснащение: – металлопластиковое окно – санузел с душем – установлен бойлер - стиральная машина - холодильник – кухонный гарнитур – новые счётчики на свет и воду Вся мебель остаётся — можно заехать и жить сразу. Документы готовы к сделке. Собственник лично на сделке Цена :Скрыть
Обновлено 20 апреля
14
2

Отчёт Домклик

Проверим недвижимость и отметим возможные риски
Documents-check
Что входит в отчёт
Данные об объекте из Росреестра
Аресты
Запреты
Ограничения
Особые отметки
История владения
Тип обременения
Правопритязания
Регистрация без личного участия
Регистрация без согласия третьего лица
Рекомендации от Домклик
Отчёт пока недоступен
Чтобы его получить, попросите продавца добавить в объявление кадастровый номер объекта или номер квартиры

Купить квартиру

Персональные предложения для вас

Расположение

Луганская Народная Республика, Луганск, 26-й квартал, 30

Объект продаёт

53 объявления
На Домклик 1 год 4 мес.

Доступные ипотечные программы

Что-то не так с объявлением?

Сообщите нам, и мы разберёмся в проблеме

Похожие объявления рядом

Поиск по улице