Мы используем файлы cookie.

Продажа квартир на третьем этаже в Лисичанске

0 объявлений

Похожие

Рядом

Box
Поиск не дал результатов
Попробуйте изменить критерии поиска или подпишитесь на текущий запрос, чтобы не пропустить новые объявления

Похожие объявления

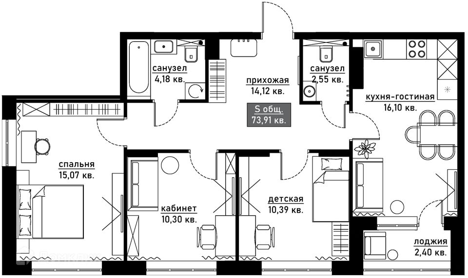
Арт. 133056112 Продаётся 3‑комнатная квартира, ул. Генерала Лашина Просторное и комфортное жильё для семьи в тихом зелёном районе — отличный выбор для тех, кто ценит уют и удобство! Основные характеристики: общая площадь — 80,1 м2;площадь кухни — 10,1 м2;этаж — 3‑й из 10‑ти;дом — кирпичный;отделка — черновая от застройщика (возможность реализовать собственный дизайн‑проект);отопление — автономное (вы контролируете температурный режим и оптимизируете расходы на коммунальные услуги). Планировка и особенности: три изолированные комнаты — достаточно места для всех членов семьи;удобная планировка, продуманная застройщиком: рациональное распределение пространства, эргономичные зоны;потенциал для создания интерьера мечты — черновая отделка даёт полную свободу в выборе стиля, материалов и расстановки мебели. Расположение и инфраструктура: тихий зелёный район — чистый воздух и спокойная атмосфера для отдыха;в шаговой доступности — остановки общественного транспорта;рядом вся необходимая инфраструктура: магазины, школы, детские сады, поликлиники, спортивные и досуговые учреждения. Условия сделки: один взрослый собственник — прозрачная история владения, отсутствие юридических сложностей;документы готовы к оформлению сделки. Не упустите шанс приобрести квартиру с большим потенциалом в развитом районе города! Звоните, чтобы договориться о просмотре и получить дополнительную информацию:

8 000 000 ₽

99 875 ₽/м²

28 мар. 26
Продается 2к квартира г.Луганск, Артемовский район, ул. Андрея Линева, район Дом природы, кирпичный дом, 3/9 эт, общей площадью 49 м2, комнаты изолированные, санузел совместный ( кафель ), большой балкон на две комнаты (застеклен, утеплен), окна пластик, трубы м/п, встроенная кухонная мебель, новая эл.проводка, натяжные потолки, сделан ремонт, теплая, светлая. Документы готовы, прописанных нет, долгов нет. Готова к сделке.

5 900 000 ₽

120 408 ₽/м²

9 апр. 26
Арт. 132864905 Продам 2 комнатную квартиру в центре г.Луганска по адресу ул.Советская д.43 возле труженика с факелом! Общая площадь квартиры 50.9 кв.м,площадь комнат 31.4 кв.м,кухня 7.2 кв.м,высота потолков 3 м.,санузел раздельный,балкон 1.6 кв.м, этаж 3/4 не угловая. В шаговой доступности: магазины,рынок,супермаркеты,гимназия,больница,парк,аптеки,бассейн,колледж,соц. фонд России, остановки общественного транспорта,хорошая транспортная развязка.

5 500 000 ₽

108 055 ₽/м²

4 дня назад
Луганск, 26, 26, 26, 26, 26, 26, 26, 26, 26, 26, 26, 26, 26, 26, 26, 26, 26, 26, 26, 26, 26, 26, 26
Продам 1комн квартиру в городе Луганск Квартал Волкова 26 Площадь-32м2 3-й этаж, 5-ти эт. дома. Окна металлопластик. Рядом с домом магазин, детсадик, школа 24 и 42.

3 400 000 ₽

106 250 ₽/м²

17 дней назад
Луганск, 1, 1, 1, 1, 1, 1, 1, 1, 1, 1, 1, 1, 1, 1, 1, 1, 1, 1, 1, 1, 1, 1, 1, 1, 1, 1, 1, 1, 1, 1, 1, 1, 1, 1, 1, 1, 1, 1, 1, 1, 1, 1, 1, 1, 1, 1, 1, 1, 1
Продается 1-комн квартира на кв. Мирный, г. Луганск АВТОНОМНОЕ ОТОПЛЕНИЕ!!!! 3 этаж 10 этажного дома. Общая площадь 34,6 м2, комната 16,8 м2, кухня 7,4 м2. Кладовые. Сан узел раздельный. Бойлер. Балкон застеклен. Долгов нет. Рядом транспортная развязка, рынок, магазины, детский сад. Цена 4 000 000 руб

4 000 000 ₽

114 285 ₽/м²

2 дня назад
Продается квартира Ул.Шевченко В.В дом 8 3/5 этаж, район краеведческого музея. 3 х комнатная квартира,автономное отопление. Площадь 80 кВ.м .Высота потолков 3.5 м . В Росреестр зарегистрирована.

6 900 000 ₽

86 250 ₽/м²

20 мар. 26
г. Луганск Юбилейный ул. Ленина Продам 1 комн. квартиру Сталинка-34м2, 3-й этаж 3-х этажного дома. Хорошее место расположение – рядом с домом Спар, Рынок , Остановка общественного транспорта и т.д.

2 800 000 ₽

82 352 ₽/м²

11 мар. 26
Удачное расположение, в нескольких метрах рынок , супермаркет. Также рядом школа и детский сад, автобусная остановка в 5 минутах ходьбы

6 500 000 ₽

104 838 ₽/м²

31 мар. 26
Луганск, 2, 2, 2, 2, 2, 2, 2, 2, 2, 2, 2, 2, 2, 2, 2, 2, 2, 2, 2, 2, 2, 2, 2, 2, 2, 2, 2, 2, 2, 2, 2, 2, 2, 2, 2, 2, 2, 2, 2, 2, 2, 2, 2, 2, 2, 2, 2
Код объекта: 2074756. Луганск. Кв. Солнечный 2-х комнатная с АО! Квартира с косметическим ремонтом, расположена на удобном 3-м этаже 5-ти этажного дома. Чистый подъезд, новая входная дверь как в квартиру, так и в подъезд. Крыша поменяна в прошлом году. По всей квартире деревянная столярка, МПО, балкон остеклен. АО! Батареи чугун, разводка новая. Во дворе парковка для авто. Развитая инфраструктура в шаговой доступности: Спар, рынок, остановки транспорта, Маш институт. Отличный вариант для комфортного проживания или коммерции!

5 650 000 ₽

134 523 ₽/м²

9 апр. 26
Арт. 132382821 Продам 2-кк на кВ. Шевченко. 3 этаж 5 этажного дома. Общая площадь квартиры 44,6 м2. Комнаты изолированы. Санузел совмещен. В квартире окна м/п, канализация пластик, разводка м/п. Есть бойлер. Состояние жилое. Квартира не угловая. Отличное месторасположение . Рядом школа , детский сад, ТЦ Аврора, рынок Поляна, парк Щорса, магазины, больница, лаборатории, остановка транспорта , с отличной развязкой. Документы готовы.

4 300 000 ₽

96 412 ₽/м²

8 дней назад
Продам 3х комн. 49.7м2 3й/5ти гор. Острая Могила ВВАУШ, Ленинский рн, г. Луганск Продам 3-х комнатную на 3м эт/5ти этажного дома на гор. Острая Могила (ВВАУШ), Ленинский р-н, г. Луганск. - Общая - 49.7м2. - С/у совмещенный. - Окна м/п. Балкон м/п. - Пластиковая разводка, медная проводка, бойлер, кабельный интернет и тв. - Встроенная кухонная мебель. Внимание!!! Мебель и техника остается. - Долгов нет! Прописанных нет. Тихое спокойное место. Остановка транспорт и магазины в 2х минутах ходьбы. Светлая, сухая, теплая квартира ждет новых владельцев!

5 100 000 ₽

102 000 ₽/м²

7 мар. 26
Луганск, 14, 14, 14, 14, 14, 14, 14, 14, 14, 14, 14, 14, 14, 14, 14, 14, 14, 14, 14, 14, 14, 14, 14, 14, 14, 14, 14, 14, 14, 14, 14, 14
Код объекта: 1917876. Луганск.4 -к квартира, кв. Волкова Октябрьский район Общая площадь: 61 м2 Этаж: 3/5 О квартире: Большая очень уютная квартира. В квартире произведена перепланировка ( перепланирована в трехкомнатную, комнаты изолированные, большой коридор). Перепланировка документально не оформлена. Балкон застеклен - м/п, окна - м/п. Входная дверь поменяна. С/у раздельный - кафель, сантехника в ухоженном состоянии. Кухня - 5 м2. Водоответвление - пластик. В квартире узаконенное автономное отопление. Квартира газифицирована. На коммуникациях приборы учета. Батареи отопления поменяны - биметалл. Инфраструктура: Квартира находится в уютном, зеленом, ухоженном дворе. Рядом школа, детские садики, магазины, федеральная налоговая служба, транспорт, стоматология, отделение почты., отделение банка. Документы: Документы готовы. Один взрослый собственник.

6 300 000 ₽

103 278 ₽/м²

8 февр. 26
Луганск, 1, 1, 1, 1, 1, 1, 1, 1, 1, 1, 1, 1, 1, 1, 1, 1, 1, 1, 1, 1, 1, 1, 1, 1, 1, 1, 1, 1, 1, 1, 1, 1, 1, 1, 1, 1, 1, 1, 1, 1, 1, 1, 1, 1, 1, 1, 1, 1, 1
Арт. 129575420 Луганск Продам 1-кк на кВ. Мирный3 этаж 9 этажного дома . Общая площадь 36м2. Не угловая. С Автономным Отоплением Квартира требует косметического ремонта. Есть кладовая. Балкон застеклен. Отличное месторасположение остановка транспорта, рынок,магазины,школа, садик. Документы готовы.

4 100 000 ₽

113 888 ₽/м²

24 дня назад
Луганск, 19, 19, 19, 19, 19, 19, 19, 19, 19, 19, 19, 19, 19, 19, 19, 19, 19, 19, 19, 19, 19, 19, 19
Арт. 131328516 Луганск. Продам 3-хкомнатную квартиру кв. Волкова, 19 Жовтневый район Общая площадь 61.9 кв. м., этаж 3/5 Окна м/п., комнаты изолированные, санузел совмещенный. В шаговой доступности: детский сад, школа, магазины, аптека, остановка общественного транспорта. Документы к сделке готовы!

6 900 000 ₽

111 470 ₽/м²

12 мар. 26
Продам 2к в городе Луганске, пгт. Юбилейный, квартал Ворошилова д13. Квартира расположена на 3 этаже 5 этажного дома, общая площадь 56м2, чешка на две половины. Большие, просторные комнаты, большая кухня, состояние-жилое, Окна М/П. Документы в порядке, к сделке готовы.

4 500 000 ₽

80 357 ₽/м²

5 мар. 26
Код объекта: 1919432. Луганск 2-к квартира, кв.Жукова Октябрьский район Общая площадь: 44.2 м2 Этаж: 3/5 О квартире: Квартира теплая. Окна -м/п с видом в уютный, зеленый двор. Балкон застеклен - дерево. Входная дверь двойная. Дом газифицирован. Состояние квартиры - под ремонт дает безграничный простор для дизайнерских фантазий и их воплощений. Инфраструктура: Все необходимое для жизни в шаговой доступности. Рядом университет им. В.Даля (возможна сдача жилья студентам). Документы: Один взрослый собственник. Документы готовы. Долгов, прописанных нет.

4 200 000 ₽

95 022 ₽/м²

4 дня назад
Луганск, 8, 8, 8, 8, 8, 8, 8, 8, 8, 8, 8, 8, 8, 8, 8, 8, 8, 8, 8, 8, 8, 8, 8, 8, 8, 8, 8, 8, 8, 8, 8, 8, 8, 8, 8, 8, 8, 8, 8, 8
Продам 3к квартиру на кв.Молодежный. Расположена на 3м этаже 5ти этажного дома. Отопление централизованное. Общая площадь 56м2. Документы готовы. Подробности по телефону

5 700 000 ₽

101 785 ₽/м²

6 мар. 26
Луганск, 18, 18, 18, 18, 18, 18, 18, 18, 18, 18, 18, 18, 18, 18, 18, 18, 18, 18, 18, 18
Арт. 132292787 Продается 3-комнатная квартира на Волкова! Отличный вариант для семьи в удобном районе! Адрес: кв. Волкова, 3 этаж, 5-го дома Общая площадь: 45 м². Состояние квартиры: Квартира утеплена.Установлены металлопластиковые окна.Новая металлопластиковая рама на балконе.Полностью заменена система отопления.Новая разводка труб.Новая канализация. Преимущества: Вся мебель остается! Вам не придется тратить время и деньги на обстановку.Отличное месторасположение:Рядом лицей «Интеллект».В шаговой доступности детские сады.Развитая инфраструктура: супермаркеты, кинотеатр, рынок.Прекрасная транспортная развязка. Документы готовы к продаже! Не упустите свой шанс стать обладателем этой замечательной квартиры!

5 000 000 ₽

111 111 ₽/м²

18 дней назад
Луганск, 5, 5, 5, 5, 5, 5, 5, 5, 5, 5, 5, 5, 5, 5, 5, 5, 5, 5, 5, 5, 5, 5, 5, 5, 5, 5, 5, 5, 5, 5, 5, 5, 5, 5, 5, 5, 5, 5, 5, 5, 5, 5, 5, 5, 5, 5, 5, 5, 5, 5, 5, 5, 5
Продам 2-х квартиру на 9 квартале Городок ОР, 3/3 этажного кирпичного дома. Общая площадь 51 кв.м, комнаты изолированные, с/ у раздельный. Квартира под ремонт. Документы готовы, никто не прописан. 3.200.000 руб.

3 200 000 ₽

62 745 ₽/м²

1 мар. 26
Луганск, 9, 9, 9, 9, 9, 9, 9, 9, 9, 9, 9, 9, 9, 9, 9, 9, 9, 9, 9, 9, 9, 9, 9, 9, 9, 9, 9, 9, 9, 9, 9, 9, 9, 9, 9, 9, 9, 9, 9, 9, 9
Арт. 129572905 Продам 2к квартиру Г Луганск, кв Заречный В квартире выполнен косметический ремонт: Замены трубы и батареи , межкомнатные двери,м/п окна,застеклённая лоджия АВТОНОМНОЕ ОТОПЛЕНИЕ 2 Кладовые, одна в квартире, вторая на этаже Чистая ,светлая просторная квартира: заходи и живи, мебель и техника остаются новым владельцам

6 200 000 ₽

117 870 ₽/м²

10 часов назад