8 403 450 ₽
165 000 ₽/м²
ЖК МЖК "АУРА"Корпус: МЖК "АУРА", позиция 1Сдача в 2 кв. 2028 г.
Луганская Народная Республика, Луганск, Артёмовский
Площадь
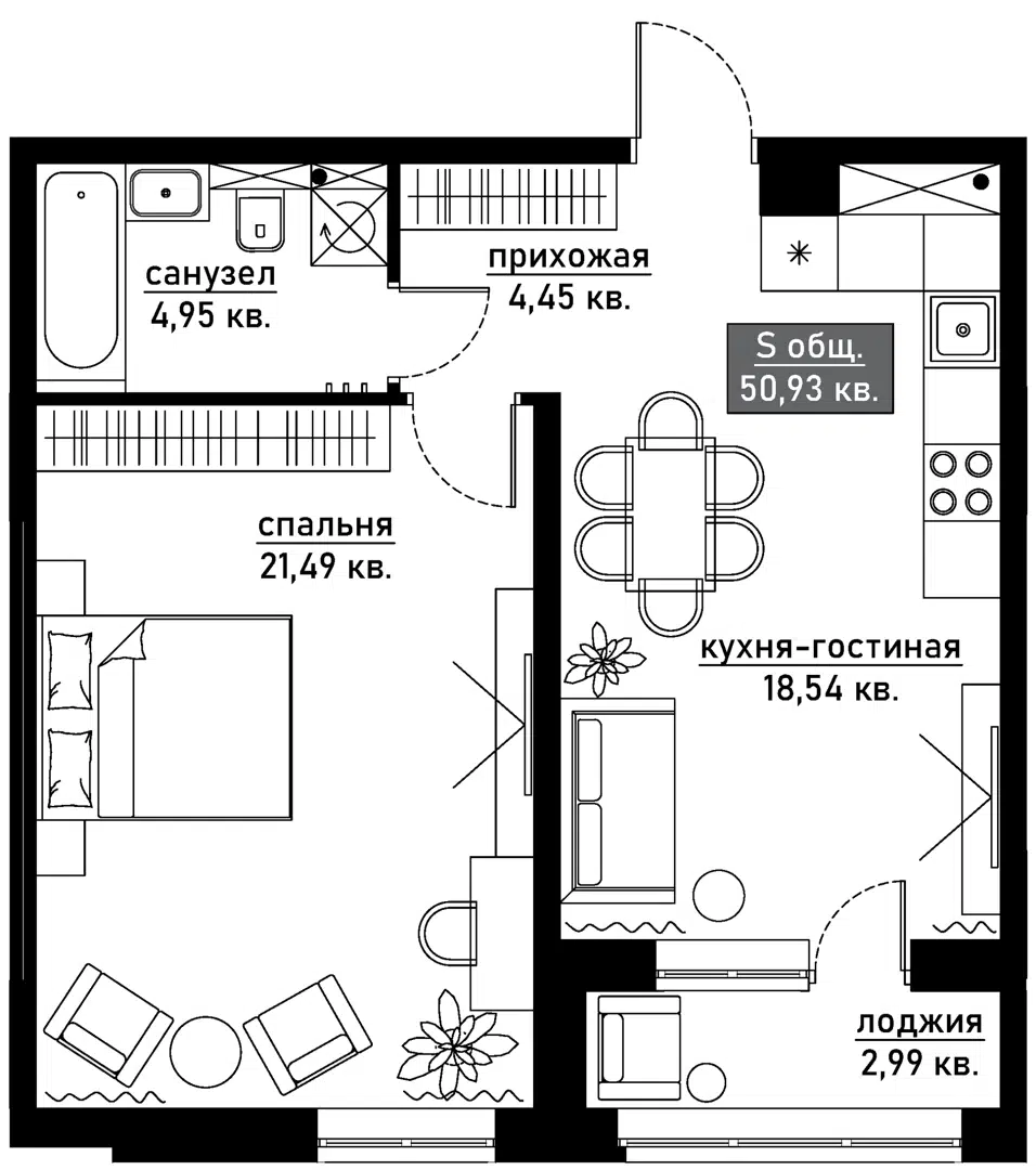
50,9 м²
Класс жилья
Комфорт
Отделка
Предчистовая
Комнат
1
Подъезд
1
Этаж
2/15
Квартира
№ 8
Объект готов к покупке
Квартиру можно добавить в сделку
Платёж в ипотеку:
от 24 766 ₽/мес.

Спросите у застройщика
Позвоните застройщику, он подробно ответит на ваши вопросыО скидках и акцияхОб ипотеке СберБанкаОб отделке и ценахОб инфраструктуре
Застройщик: ООО "СЗ "Территория"

Подробнее о ЖКМЖК "АУРА"
Подробнее о корпусе
Аккредитация
Аккредитован
Финансируется СберБанком
Нет
Продажа квартир через эскроу
Да
Всего квартир в продаже
163
Материал стен
Монолитно-кирпичный
Количество этажей
15
Варианты отделки в ЖК
Как может выглядеть отделка
1 из 4
Предчистовая
Такой тип отделки еще называют Вайт бокс, потому что стены и потолки в квартире белые, покрытые шпатлевкой. На полу ровная чистовая стяжка. Сделана электрика: есть электрощиток в квартире, выводы под розетки, выключатели и светильники. Разведены трубы в ванной и на кухне. Важно учитывать, что это примерные характеристики предчистовой отделки. Каждый застройщик определяет свои условия готовности квартиры для приёмки.
Участники строительства
ОС
ООО "СЗ "Территория"
Основан в 2024 г.
1
дом строится
в 1 ЖК










