Описание
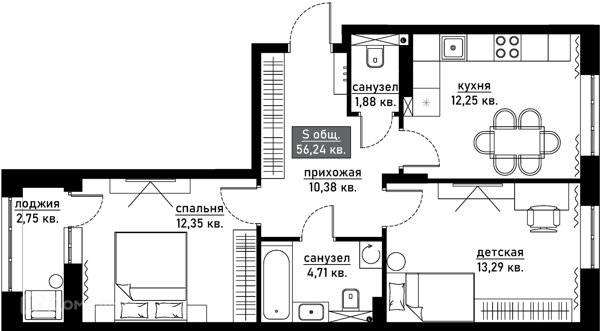
1. Развивающийся район. 2. Авторская архитектура, обеспечивающая максимальную инсоляцию (доступ солнечного света в комнаты), уникальные планировочные решения с максимально эффективным использованием полезной площади к площади мест общего пользования. 3. Закрытое безопасное дворовое пространство. 4. Детская и спортивная площадка. 5. Собственная котельная. Квартира 1-2-3 Этаж 2 Уникальная архитектура. Мастер-спальни с гардеробной и приватным с\у, выделенные гардеробные и постирочные. Высота потолков – от 2,8 м, увеличенные оконные проемы, заниженные подоконники. Остекленные лоджии в каждой квартире Общая площадь 70.80 Жилая площадь 26.80 Площадь с коэффициентом 67.60 Остекленная лоджия 6.40 Балкон 0.00Читать далее
Объект готов к покупке

145 728 ₽/м²
9 851 213 ₽
147 456 ₽/м²
9 968 026 ₽
150 912 ₽/м²
10 201 651 ₽

Подробнее о ЖКТрилистник
Активно развивающийся район.Читать далее
Подробнее о корпусе
Варианты отделки в ЖК
Как может выглядеть отделка
Предчистовая
Такой тип отделки еще называют Вайт бокс, потому что стены и потолки в квартире белые, покрытые шпатлевкой. На полу ровная чистовая стяжка. Сделана электрика: есть электрощиток в квартире, выводы под розетки, выключатели и светильники. Разведены трубы в ванной и на кухне. Важно учитывать, что это примерные характеристики предчистовой отделки. Каждый застройщик определяет свои условия готовности квартиры для приёмки.
Участники строительства

8 773 440 ₽

9 444 400 ₽

8 029 056 ₽

9 680 730 ₽

9 762 120 ₽








