Описание
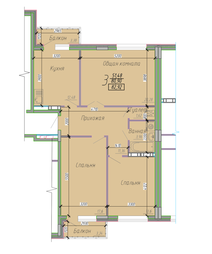
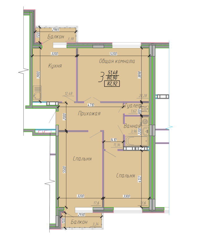
Продается 3-комнатная квартира №15 по адресу г. Луганск, квартал Острая Могила (возле дома №158 и №157), в Многоквартирном Доме комфорт-класса "Авиатор" на 4 этаже из 9, Блок-секция №1. Общая площадь квартиры 82,92 м2, жилые комнаты 17, 6; 20,28 и 13,6 кв. м., кухня - 12,48 кв.м. Комнаты изолированные. В квартире 2 остекленных панорамных балкона, выходящие на обе стороны дома. Санузел раздельный. Высота потолков 2,75 м. Отличная транспортная доступность: До остановки — 2 мин, до школы и детсада — 5 мин пешком, до центра города — 10 мин на авто. На внутренней территории комплекса предусмотрен двор, который будет включать в себя всё для комфортного досуга: детские площадки, зоны для занятий спортом и прогулок, зоны отдыха, а так же наземную парковку на территории и Супермаркет.Читать далее
Объект одобрен банком

105 000 ₽/м²
8 706 600 ₽
105 000 ₽/м²
8 706 600 ₽
105 000 ₽/м²
8 706 600 ₽
105 000 ₽/м²
8 706 600 ₽
105 000 ₽/м²
8 706 600 ₽

Подробнее о ЖКМЖК "Авиатор"
ЖК Авиатор — маленький «город в городе», где есть все, что нужно для счастливой и комфортной жизни. Внутри комплекса продуманы места для отдыха, спорта и развлечений.
Подробнее о корпусе
Варианты отделки в ЖК
Как может выглядеть отделка
Без отделки
Это помещение с окнами и базовой входной дверью, иногда — без межкомнатных перегородок. Электричество проведено до щитка в подъезде. Радиаторов отопления может не быть — только трубы. Стены не оштукатурены. Откосов, подоконников и сантехнического оборудования нет. Важно учитывать, что это примерные характеристики отделки квартиры без отделки. Каждый застройщик определяет свои условия готовности квартиры для приёмки.
Участники строительства

9 444 400 ₽

8 213 400 ₽

8 959 800 ₽

9 366 000 ₽

8 235 000 ₽


