Мы используем файлы cookie.
Москва
Изменить

Расположение

Доступные ипотечные программы

Plan
Количество изображений1 из 22
Вам доступна скидка на ипотеку до 1%
Получить скидку
Лого СбераКорпус проверен
8 706 600
105 000 ₽/м²
ЖК МЖК "Авиатор"Корпус: Жилой домСдача в 2 кв. 2028 г.
Луганская Народная Республика, Луганск
Иконка квадратных метров
Площадь
82,9 м²
Иконка дивана
Жилая
51,5 м²
Иконка столовых приборов
Кухня
12,5 м²
Класс жилья
Комфорт
Отделка
Без отделки
Комнат
3
Иконка вид из окна
Вид из окна
Двор
Иконка балкона
Балкон
1
Санузел отдельно
Санузел отдельно
1

Описание

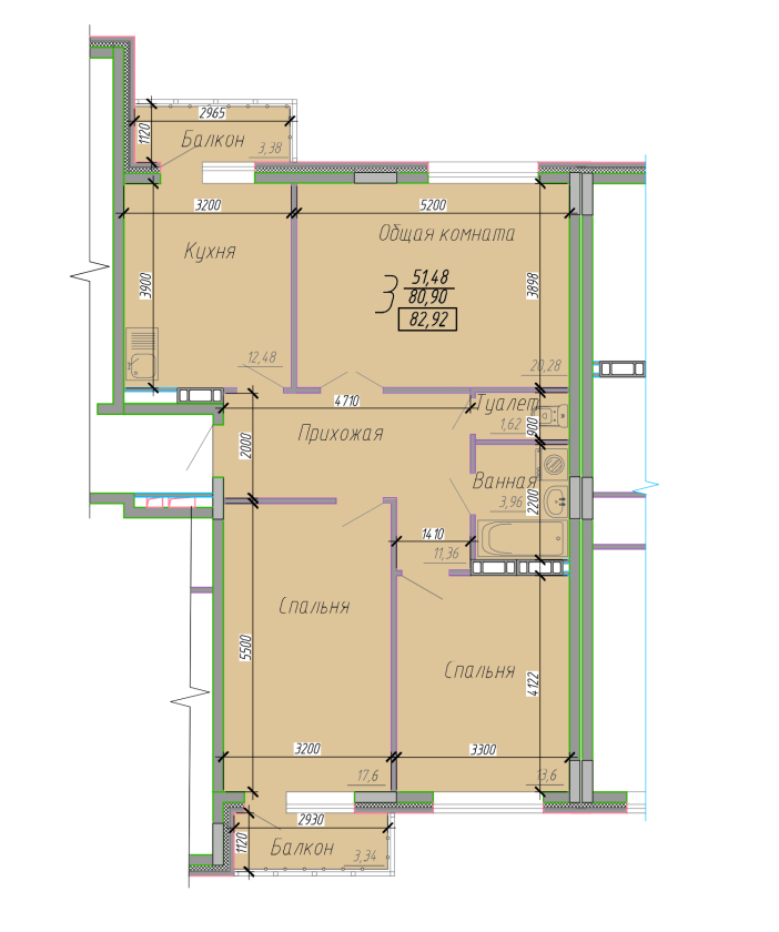
Продается 3-комнатная квартира №5 по адресу г. Луганск, квартал Острая Могила (возле дома №158 и №157), в Многоквартирном Доме комфорт-класса "Авиатор" на 2 этаже из 9, Блок-секция №1. Общая площадь квартиры 82,92 м2, жилые комнаты 17, 6; 20,28 и 13,6 кв. м., кухня - 12,48 кв.м. Комнаты изолированные. В квартире 2 остекленных панорамных балкона, выходящие на обе стороны дома. Санузел раздельный. Высота потолков 2,75 м. Отличная транспортная доступность: До остановки — 2 мин, до школы и детсада — 5 мин пешком, до центра города — 10 мин на авто. На внутренней территории комплекса предусмотрен двор, который будет включать в себя всё для комфортного досуга: детские площадки, зоны для занятий спортом и прогулок, зоны отдыха, а так же наземную парковку на территории и Супермаркет.Читать далее

Объект готов к покупке

Квартиру можно добавить в сделку
Платёж в ипотеку:
от 106 996 ₽/мес.
проценты скидки
17 квартир такой планировки
Такие же квартиры на других этажах корпуса
Спросите у застройщика
Позвоните застройщику, он подробно ответит на ваши вопросы
О скидках и акцияхОб ипотеке СберБанкаОб отделке и ценахОб инфраструктуре
Застройщик: Жилстройинвест
Phone-chat

Подробнее о ЖКМЖК "Авиатор"

ЖК Авиатор — маленький «город в городе», где есть все, что нужно для счастливой и комфортной жизни. Внутри комплекса продуманы места для отдыха, спорта и

развлечений.

Подробнее о корпусе

Иконка документа
Аккредитация
Аккредитован
Иконка документа
Строительная готовность
100 %
Иконка документа
Финансируется СберБанком
Нет
Иконка документа
Продажа квартир через эскроу
Да
Иконка документа
Всего квартир в продаже
18
Иконка документа
Материал стен
Монолитно-кирпичный
Иконка документа
Количество этажей
9

Варианты отделки в ЖК

Как может выглядеть отделка

Фото отделки
1 из 5

Без отделки

Это помещение с окнами и базовой входной дверью, иногда — без межкомнатных перегородок. Электричество проведено до щитка в подъезде. Радиаторов отопления может не быть — только трубы. Стены не оштукатурены. Откосов, подоконников и сантехнического оборудования нет. Важно учитывать, что это примерные характеристики отделки квартиры без отделки. Каждый застройщик определяет свои условия готовности квартиры для приёмки.

Участники строительства

Жилстройинвест
Основан в 2023 г.
1
дом сдан в 1 ЖК
100%
домов сдано вовремя

3-комн. квартира, 82,9 м², 2/9 эт.

8 706 600
105 000 ₽/м²
Лого СбераКорпус проверен
Жилстройинвест
Застройщик